Iklan 300x250

42 lutron radiora 2 wiring diagram

Lutron Keypad Wiring - diagramweb.net GRAFIK Eye® QS main unit.Wiring using Sivoia QED power panels involves pulling both communications (A) and Class 2 power (B) from each roller shade or drapery EDU back to the power panel, and pulling communications (A) from each keypad location back to the power panel. For convenience, Lutron SVQ-CBL combines the communications and power ... Lutron Maestro Fan Control Led Dimmer Wiring Diagram Lutron Maestro Fan Control Led Dimmer Wiring Diagram The Maestro® fan speed control system consists of a Wall Control, one to four . Install fan(s) according to manufacturer's instructions and check for proper should not be ganged with other Maestro IR® fan or fan/light controls.

wiring diagram wrong - Lutron Electronics Company Inc Help!! I installed the maestro cl with 2 companion dimmers in my great room. They work great, except now I don't have power in another adjacent room. I went over the step by step directions on the lutron site and everything looks perfect. I then opened the pdf wiring diagram on the lutron site and the dimmer in location 3 shows different wiring.

Lutron radiora 2 wiring diagram

Lutron radiora 2 wiring diagram

Multi-location wiring of Sunnata PRO Dimmers & Switches ... Before you remove the old devices, make sure to tag the common wires. If you do this and follow the wiring diagram, then you have a 50% chance of getting it right the first time and a 100% chance of getting it right the second time. For loads with sockets: you can use an incandescent bulb to find the load side. Homeworks QS Single Line Diagram - forums.lutron.com Homeworks QS Single Line Diagram If this is your first visit, be sure to check out the Welcome Post and the FAQ . In order to reply to a post or start a new thread, you will need to register : click the Register link above to proceed. PDF Integration Note - Converging Systems 1. WIRING DIAGRAM (for RadioRA2) with CS-Bus equipment Figure 2 Wiring/Configuration Notes: 1. Maximum length of CS-Bus cabling from e-Node to the last ILC-x00 using CAT5e or better cabling (and obeying the 1-1 pin-out requirements for the RJ-25-RJ25 cable) = 4000 feet 2.

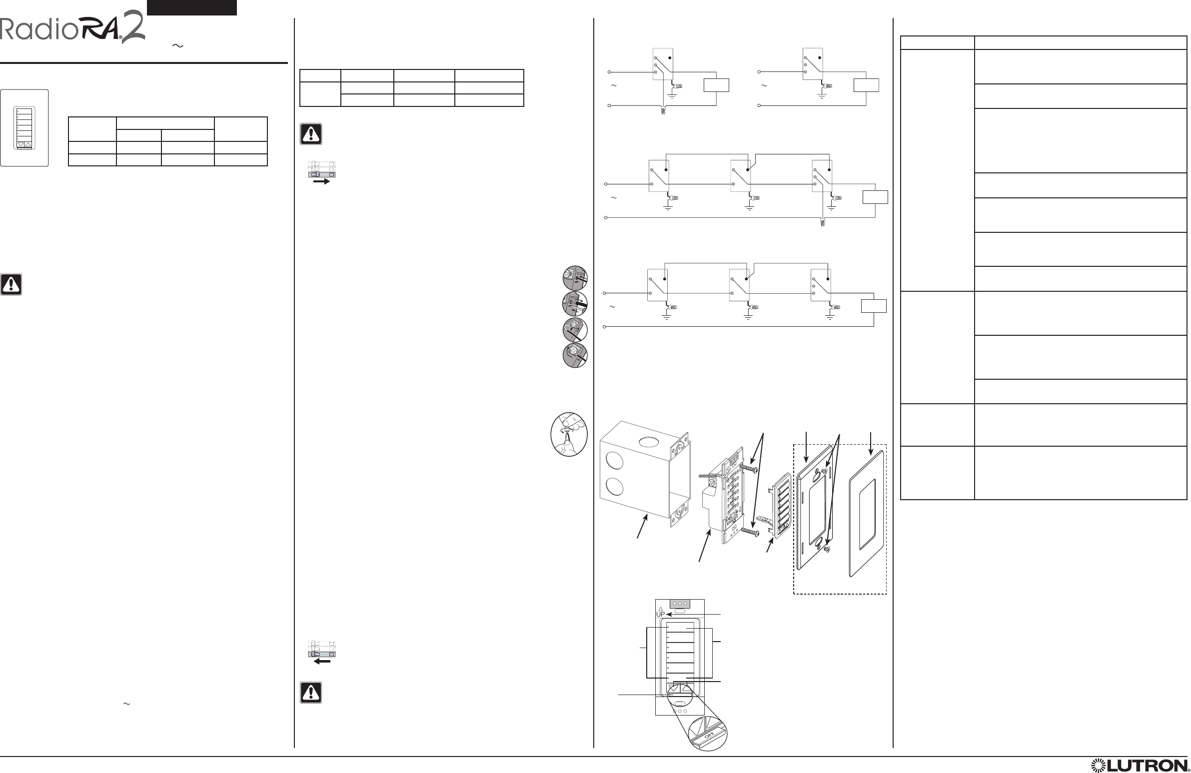
Lutron radiora 2 wiring diagram. Lutron Radiora 2 Wiring Diagram - Free Wiring Diagram Collection of lutron radiora 2 wiring diagram. A wiring diagram is a simplified standard photographic depiction of an electric circuit. It reveals the components of the circuit as simplified forms, and also the power and signal links between the gadgets. Sunnata PRO Dimmers & Switches for RadioRA 3 System | Lutron US houses built from the mid 1980's typically have a neutral (white) wire in the switch box. The neutral (white) wires are typically tied together with a wirenut. Here is a picture of a typical switch box that contains neutral connections: Section (2): RadioRA 3 Sunnata PRO Dimmer & Switch Specifications Upgrading RadioRA 2 to HomeWorks QS : Lutron Would like to reduce the lag time and have a single Lutron system to manage. As Homeworks QS has Contact Closure Interfaces with lots of inputs, this would be a nice replacement for Control4. Unfortunately, RadioRA 2 only has 2 x (non-security) CCI's on the Visor Control so I'd need 8. PDF RadioRA 2 Maestro Local Controls SPEC (369225) RadioRA 2 Maestro dimmers incorporate advanced features such as fade-on / fade-off, delayed long fade-to-off, and rapid full-on. RadioRA 2 Maestro local controls include a Front Accessible Service Switch (FASS) for safe lamp replacement. RadioRA 2 Maestro local controls install in single pole or multi-location applications. Remote

PDF RadioRA 2 Maestro Local Controls - 1000Bulbs.com 2 | Lutron ® 24/7 Technical Support—800.523.9466 product specifi cations 369-225i 07.16.12 RadioRA ® 2 Maestro ® Local Controls Specifi cations Model Numbers Dimmer: RRD-6D-XX, RRD-10D-XX, RRD-10ND-XX, RRD-6NA-XX, RadioRA 3 | Lutron Introducing RadioRA 3. Lutron raises the bar once again. 10 years in the making, RadioRA 3 is a new, game-changing system that promises to transform the way your residential clients look at lighting control. Learn More. Need wiring help when replacing Lutron DV switch with ... Hi,I write to request help in wiring diagram to install a Lutron smart dimmer. I'm installing the smart dimmer (PD-6WCL) for a 3-way application, and the installation guide asks me to find "a screw with different color" from my previous switch to tag the wires. Unfortunately, my previous switch is a Lutron DIVA (DV-103P) without screws. Instead, it was connected with 4 wires (one black, two ... Lutron RadioRA 2 Components and Compatible Products The diagram above provides an overview of the components that constitute the RadioRA 2 system, as well as compatible Lutron products. You can refer to the categorized list below to find a complete list of components with more detail about select products.

3 way switch wiring 2 fixtures between switches 3 way switch wiring 2 fixtures between switches If this is your first visit, be sure to check out the Welcome Post and the FAQ . In order to reply to a post or start a new thread, you will need to register : click the Register link above to proceed. PDF English Wiring Diagram 1 Wiring Diagram 2 Troubleshooting ... (0.75 mm2) or 16 AWG (1.0 mm2) wire. For single and multi-location installations • see Wiring Diagrams. 4. Push all wires back into the wallbox and loosely fasten the control to the wallbox using the control mounting screws provided. Do not pinch the wires. 5.® Attach the Lutron Claro or Satin Colors wallplate adapter and wallplate. See Wiring Diagrams - lutron.com Wiring Diagrams. Search the Lutron archive of wiring diagrams. To find a diagram for a specific product or system, please use the drop-down menus below. For more information, please contact a Customer service representative. You can also call us at +1.888.LUTRON1 (588.7661). Lutron Dimmer Switch Installation Video - U Wiring Check out our Wiring Wizard for step-by-step instructions videos and wiring diagrams including 3-way for. With Lutron dimmers switches the model number can be located on the side of the device on a white label. Ad Get Switch Install. Ad Get Switch Install. Three-Location Installation Installing one RadioRA Dimmer and two Accessory.

RadioRA 2 Maestro® Local Controls

RadioRA 2 Maestro® Local Controls

Lutron RadioRA 2 Visor Controls Spec by Exclusive Lighting ... Inductive Load 0.2 A 0.1 A Do not use. 24/7 Technical Support—800.523.9466. product specifications. 369-224a. 12.10.09. RadioRA 2 Visor Controls Wiring Diagram Dry Contact Closure Input. C ...

0076 Electronic Dimmer/Switch with RF Communication Cover ...

0076 Electronic Dimmer/Switch with RF Communication Cover ...

PDF RadioRA 2 Connection Diagrams - Lutron Electronics Company Inc Connection diagrams | RadioRA ® 2 For illustration purposes only. Consult model number pages for specific voltage and capacity information. 3-wire fluorescent power module 3-wire fluorescent power module RadioRA 2 neutral wire dimmer EcoSystem LED driver - Hi-lume A-Series EcoSystem LED driver - Hi-lume A-Series RadioRA 2 hybrid keypad ...

Lutron Electronics 0062 Dimmer or Switch User Manual 7

Lutron Electronics 0062 Dimmer or Switch User Manual 7

Radiora 2 Wiring Diagram 2. M. RadioRA® 2 Maestro® local controls support color change kits. .. For shunt capacitor installation see Wiring Diagram 4, 9, or RadioRA® 2. instructions and wiring diagrams. Wallplate is warm. Solid-state control dissipation. • Solid-state dimmers internally dissipate about 2% of the total connected. Connection Diagrams for RadioRA® 2.

New Construction / Lutron RadioRa2 / Lighting suggestions needed

New Construction / Lutron RadioRa2 / Lighting suggestions needed

PDF Primary controls | RadioRA 2 hybrid keypad wire installations (neutral wire recommended) • Coordinating Claro ®, Satin Colors ® and Stainless Steel wallplates only (available separately); not compatible with non-Lutron wallplates, see pg. 408 • For information on engraving, text symbols, or backlit buttons/backlit text, see pgs. 436-437 • A RadioRA 2 system can have up to 100 ...

Lutron Russia - Photos | Facebook

Lutron Russia - Photos | Facebook

End Wall Acne Forever with Lutron's Fabulous RadioRA®2 ... Plus Lutron will be releasing a RA2 Softswitch Module Fall of 2013 that will make this process even easier! I have quite a few clients that now wiring all of their lighting circuits into a closet and then putting the keypads in the rooms instead of 4 or 5 gang banks of light switches.

Lutron DVELV-300P-WH Diva 300W Electronic Low Voltage Single ...

Lutron DVELV-300P-WH Diva 300W Electronic Low Voltage Single ...

PDF Lutron Wiring Diagram - Womack Electric Wiring Diagram #1 Single-pole wiring Green *** Neutral Black * Red **† HotRed ** 120VAC 60Hz Feed Lighting Load or Fan * ** or Copper/Black screw terminal ** * or Brass screw terminal *** or Green screw terminal † or Red/White stripe (cap off) Wiring Diagram #2

Remote Control Shades - Back Bay Shutter Co. | Somfy ...

Remote Control Shades - Back Bay Shutter Co. | Somfy ...

PDF English Wiring Diagram 1 Wiring Diagram 2 Troubleshooting ... Wiring Diagram 1 Multi-Location Installation with Neutral2, 3 -10ND, SD-RD, -2ANF -8ANS with SD-RS Dimmer /Switch Fan Speed Control 3 Neutral wire Dimmers/Switches/Fan Speed Controls must be connected on the Load side of a multi-location installation. 2 Up to 9 RadioRA-SR Remote Dimmers/Switches may be connected to the RadioRA-SR Dimmer/Switch.

Lutron RA2 Select System Overview

Lutron RA2 Select System Overview

PDF INSTALL RADIORA 2 RRD-PRO (044357a) This control can be used in a RadioRA 2 or RA2 Select system for control from keypads, Pico wireless controls, schedules, and more. For RadioRA 2, use the system programming software to set up the system

Lutron Manuals / Datasheets / Instructions - Manuals+

Lutron Manuals / Datasheets / Instructions - Manuals+

Wiring Diagrams - Lutron Electronics Company Inc Wiring Diagrams. Search the Lutron archive of wiring diagrams. To find a diagram for a specific product or system, please use the drop-down menus below. For more information, please contact a Customer service representative. You can also call us at +1.888.LUTRON1 (588.7661).

Dimmers / Lighting Controls

Dimmers / Lighting Controls

PDF Integration Note - Converging Systems 1. WIRING DIAGRAM (for RadioRA2) with CS-Bus equipment Figure 2 Wiring/Configuration Notes: 1. Maximum length of CS-Bus cabling from e-Node to the last ILC-x00 using CAT5e or better cabling (and obeying the 1-1 pin-out requirements for the RJ-25-RJ25 cable) = 4000 feet 2.

LUTRON ELECTRONICS RADIORA 2 RRD-W1RLD INSTALLATION ...

LUTRON ELECTRONICS RADIORA 2 RRD-W1RLD INSTALLATION ...

Homeworks QS Single Line Diagram - forums.lutron.com Homeworks QS Single Line Diagram If this is your first visit, be sure to check out the Welcome Post and the FAQ . In order to reply to a post or start a new thread, you will need to register : click the Register link above to proceed.

Lutron Electronics 0031 Lighting Control Transceiver User ...

Lutron Electronics 0031 Lighting Control Transceiver User ...

Multi-location wiring of Sunnata PRO Dimmers & Switches ... Before you remove the old devices, make sure to tag the common wires. If you do this and follow the wiring diagram, then you have a 50% chance of getting it right the first time and a 100% chance of getting it right the second time. For loads with sockets: you can use an incandescent bulb to find the load side.

RadioRA 2

RadioRA 2

0076 Electronic Dimmer/Switch with RF Communication Cover ...

0076 Electronic Dimmer/Switch with RF Communication Cover ...

Mounting Instructions

Mounting Instructions

Lutron Radio Ra - Deep Discount Lighting Archive

Lutron Radio Ra - Deep Discount Lighting Archive

Lutron Electronics 0071 Hybrid Keypad User Manual 1

Lutron Electronics 0071 Hybrid Keypad User Manual 1

How Smart Light Switches Can Use Power Even When Off - Smart ...

How Smart Light Switches Can Use Power Even When Off - Smart ...

Electricsuppliesonline.com: December 2013

Electricsuppliesonline.com: December 2013

Lutron RRD-6NA-WH RadioRA® 2 Maestro® 600W Neutral Wire ...

Lutron RRD-6NA-WH RadioRA® 2 Maestro® 600W Neutral Wire ...

looking for a SIMPLE T5 fluorescent dimmer... - DoItYourself ...

looking for a SIMPLE T5 fluorescent dimmer... - DoItYourself ...

RadioRA 2 Maestro Local Controls SPEC (369225)

RadioRA 2 Maestro Local Controls SPEC (369225)

Radio Ra 2 Discount: Save up to 40% - Shop TodayDiscount ...

Radio Ra 2 Discount: Save up to 40% - Shop TodayDiscount ...

Lutron RadioRA 2 Digital Switch Overview

Lutron RadioRA 2 Digital Switch Overview

0028 Keypad User Manual RA LG Button MC.qxd Lutron Electronics

0028 Keypad User Manual RA LG Button MC.qxd Lutron Electronics

Lutron RadioRA 2 seeTouch Hybrid Keypad Overview

Lutron RadioRA 2 seeTouch Hybrid Keypad Overview

MidnightStudio » Lutron RadioRA DIY Appliance Module

MidnightStudio » Lutron RadioRA DIY Appliance Module

Lutron RRD-W6-BRL-WH RadioRA2, 6-Button w/ Raise/Lower, White ...

Lutron RRD-W6-BRL-WH RadioRA2, 6-Button w/ Raise/Lower, White ...

0076 Electronic Dimmer/Switch with RF Communication Cover ...

0076 Electronic Dimmer/Switch with RF Communication Cover ...

the definitive Grafik Eye master thread!! | Page 83 | AVS Forum

the definitive Grafik Eye master thread!! | Page 83 | AVS Forum

A Lutron® | Smart home design, House deck, Lutron

A Lutron® | Smart home design, House deck, Lutron

LuxeLine Interiors - Orange County | Los Angeles | San Diego

LuxeLine Interiors - Orange County | Los Angeles | San Diego

RadioRA 2 Maestro Local Controls SPEC (369225)

RadioRA 2 Maestro Local Controls SPEC (369225)

Love-your-home-again-with-RA2

Love-your-home-again-with-RA2

USAI®

USAI®

Lutron RadioRA 2

Lutron RadioRA 2

7 Home Automation ideas | home automation, automation, house ...

7 Home Automation ideas | home automation, automation, house ...

Lutron SF-103P-WH Skylark 120V / 8A Fluorescent 3-Way Dimmer ...

Lutron SF-103P-WH Skylark 120V / 8A Fluorescent 3-Way Dimmer ...

Lutron RadioRA2 Wireless Lighting System

Lutron RadioRA2 Wireless Lighting System

New Developments - Rimikon

New Developments - Rimikon

Using Lutron Application Note #441 Overview: Revision A ...

Using Lutron Application Note #441 Overview: Revision A ...

0032 Radio Frequency Controlled Dimmer User Manual 044-008a ...

0032 Radio Frequency Controlled Dimmer User Manual 044-008a ...

0 Response to "42 lutron radiora 2 wiring diagram"

Post a Comment

Iklan Atas Artikel

Iklan Tengah Artikel 1

Iklan Tengah Artikel 2

Iklan Bawah Artikel